Rondwandeling Sluis: http://www.josbedaux.nl/node/180
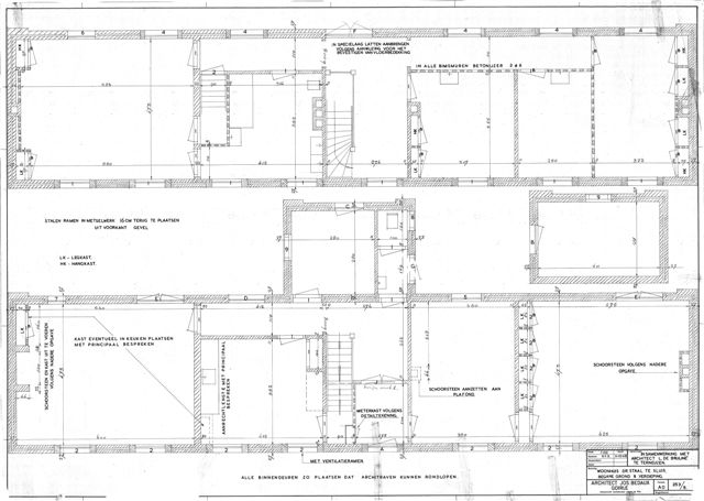
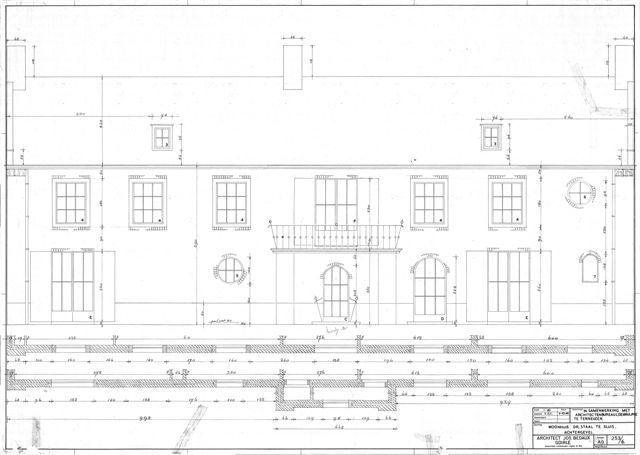
Dit huis moest volgens voorschrift van de gemeente de hele frontbreedte van het terrein beslaan. Het resultaat een breed en ondiep huis. De voorgevel is in de ontwerpfase versimpeld en strakker geworden. Onder de ramen in de voorgevel is het lood en een deel van de rollaag vervangen door een hardstenen plaat die enkele centimeters uit de gevel steekt. Binnen treffen we nog veel Bedaux gevoel aan. De huidige eigenaar heeft ons foto’s van vroeger verstrekt. Deze zijn geplaatst op de website Jos Bedaux Architect.
