In 1953 kreeg Bedaux de opdracht voor dit raadhuis, na een besloten prijsvraag, en pas vele jaren later is het in 1966 gerealiseerd. In 1981 is er nog een achtervleugel aangebouwd.
Het raadhuis wordt nu niet meer als zodanig gebruikt. Inmiddels hebben de architecten Claus en Kaan een nieuw raadhuis gebouwd voor de nieuwe gemeente Tynaarlo, waar Vries nu onderdeel van uit maakt.
Het raadhuis van Bedaux heeft een nieuwe eigenaar gekregen, een makelaarskantoor. Binnen hebben naast de makelaar, de bibliotheek, de kinderopvang en de wereldwinkel een plaats gekregen en is weinig meer van de sobere sfeer van Bedaux over. Buiten zijn ook ingrepen gepleegd in dit gebouw van die Brabantse kloosterbouwer zoals hij door de receptioniste van het nieuwe gemeentehuis werd betiteld, toen wij daar op bezoek kwamen. De daken zijn voorzien van nieuwe leien met hoekpannen, en de kozijnen hebben een donkergrijze kleur gekregen. Aan de voorzijde zijn de entree en een aantal kozijnen gewijzigd.
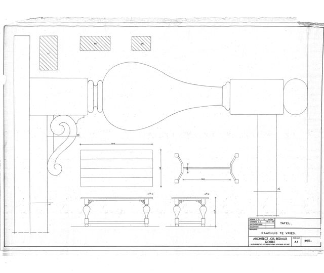
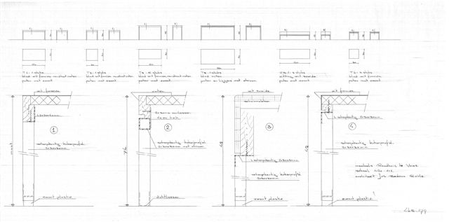
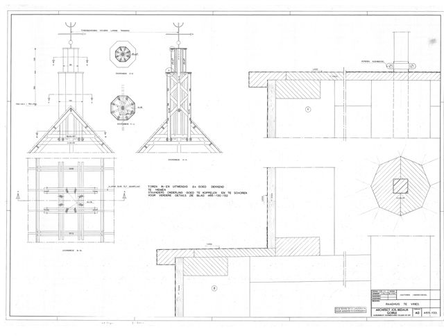
Nog goed zichtbaar blijft dat Bedaux destijds al zijn classicistische stijlmiddelen heeft ingezet om hier een statig, en toch ook wel een beetje Brabants vriendelijk gemeentehuis neer te zetten.
raadhuis vries
1953 - 1966
raadhuisplein 1
9481BG
vries
- ‹‹
- 2 van 2
- ‹‹
- 2 van 2
Javascript is required to view this map.
